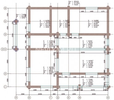
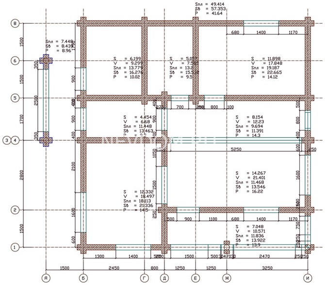
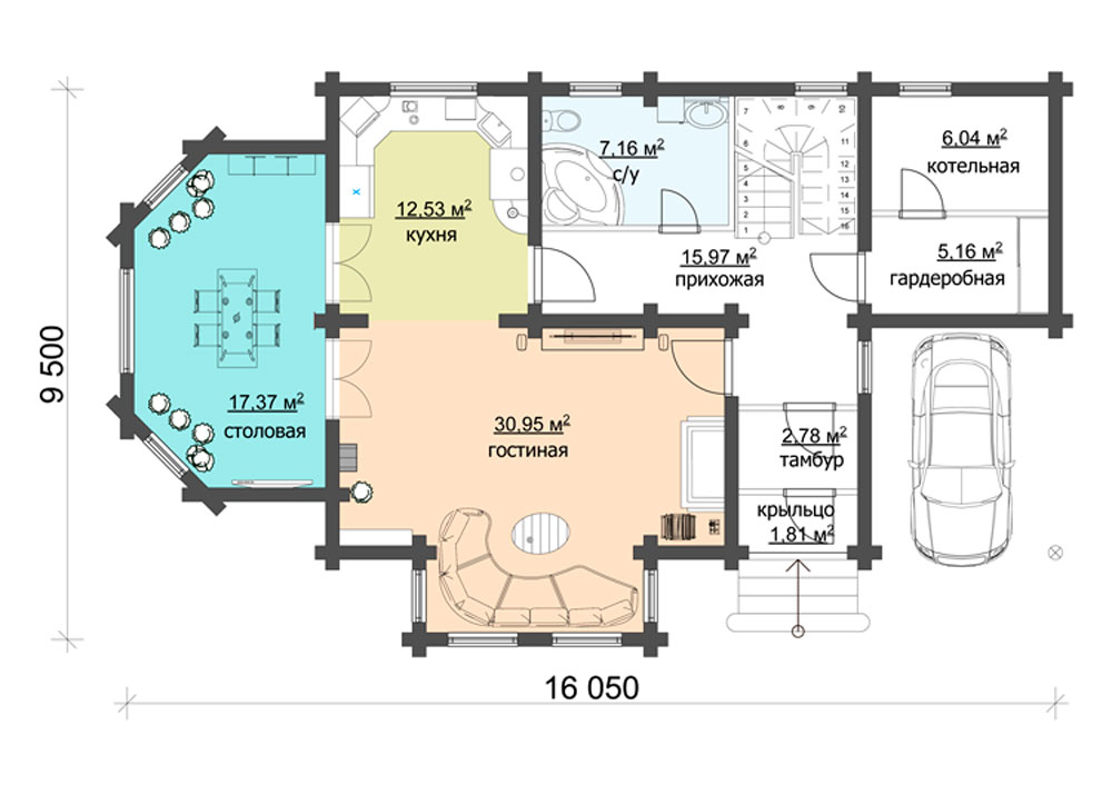
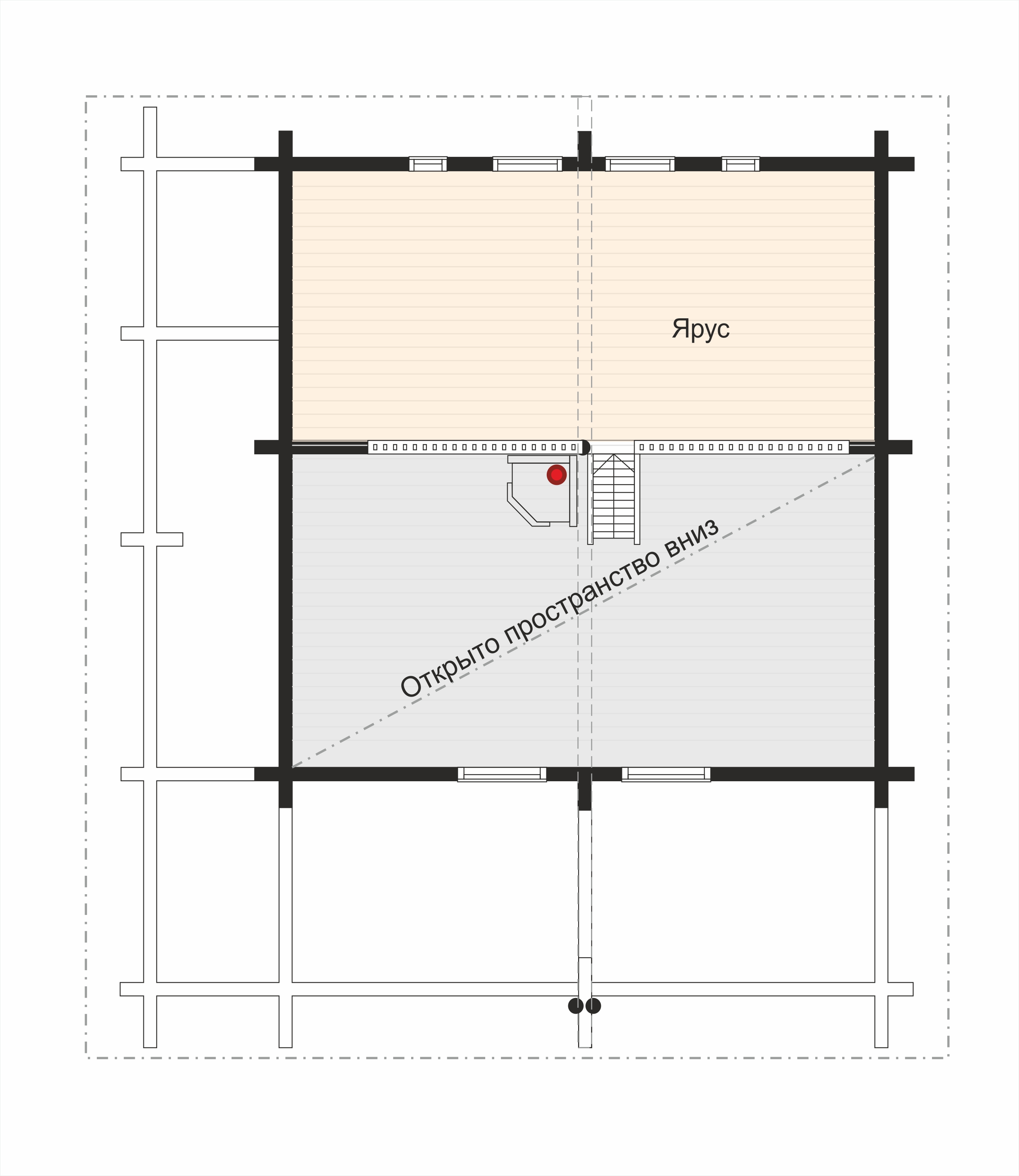
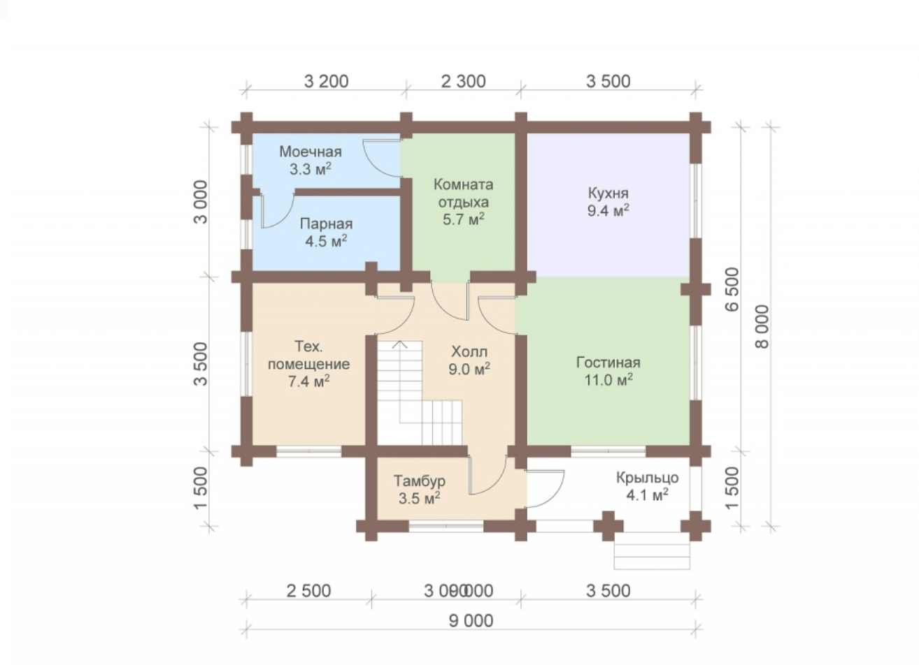
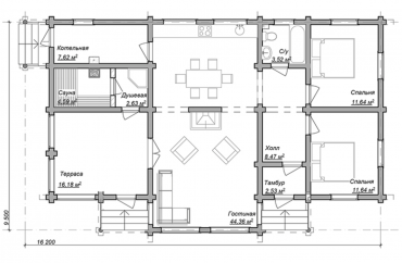
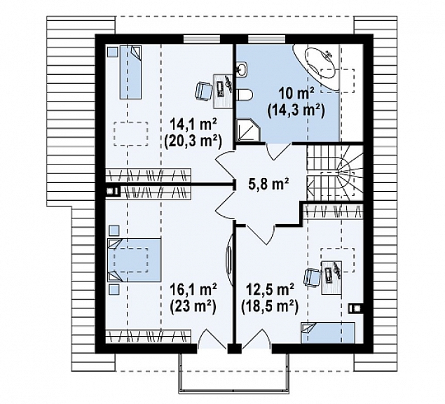
ПРОЕКТ «170 м2»

«Лесная Рапсодия»

Площадь дома: 130 м2
1 260 000 руб.

Компактный дом в традиционно-русском стиле. Уникальность этого дома в том что, не смотря на скромные размеры, помимо спален, кухни и гостинной, в нём нашлось место для «банного уголка» и открытого пространства «второй свет».

Прекрасное решение для небольших семей.

  • Площадь S = 130 м.кв

Материал стен: Оцилиндрованное бревно D (диаметр) 220-260 мм.

Комплектация дома

  • Проектная документация (Архитектурный раздел с  3D-Визуализацией, конструктивная часть).
  • Стеновой комплект из оцилиндрованного бревна диаметром 220-260мм.
  • Комплектующие для сборки дома :Деревянные березовые нагеля диаметром 22мм, межвенцовый джутовый утеплитель ,компенсаторы усадки, скобы, метизы, гидроизоляция на фундамент).
  • Монтаж стенового комплекта на деревянные нагеля с укладкой межвенцового утеплителя.
  • Монтаж подкладной доски 50х200мм.
  • Межэтажное перекрытие из бруса 100х200мм
  • Монтаж(врезка)перекрытий.
  • Стропильная система : Стропильная доска 50х150мм, обрешетка 25х100мм, контробрешетка 50х50мм.Гидропароизоляционная пленка.
  • Монтаж стропильной системы на плавающие ,скользящие опоры, подвесы для равномерной усадки.
  • Антисептирование  стенового комплекта и стропильной системы.
  • Доставка домокомплекта

Рассчитывается индивидуально

  • Фундамент – монолитная железобетонная плита толщиной 300мм (с разводкой внутренних инженерных сетей в конструкции фундамента).
  • Внешняя отделка дома (включает ветровую доску, доску подшивки свесов с покраской и установкой (вагонкой), обсады оконных и дверных проемов, наличники наружные, устройство террассы из строганной доски естественной влажности доска (сосна). Частичная шлифовка, покраска дома и террас в 2 слоя (Tikkurila).
  • Кровля дома – металлочерепица (толщина 0,5мм), водосточная система с настилом и установкой.
  • Металлопластиковые окна (профиль рехау, двухкамерный стеклопакет, ламинация в цвет)
  • Дверь входная металлическая.

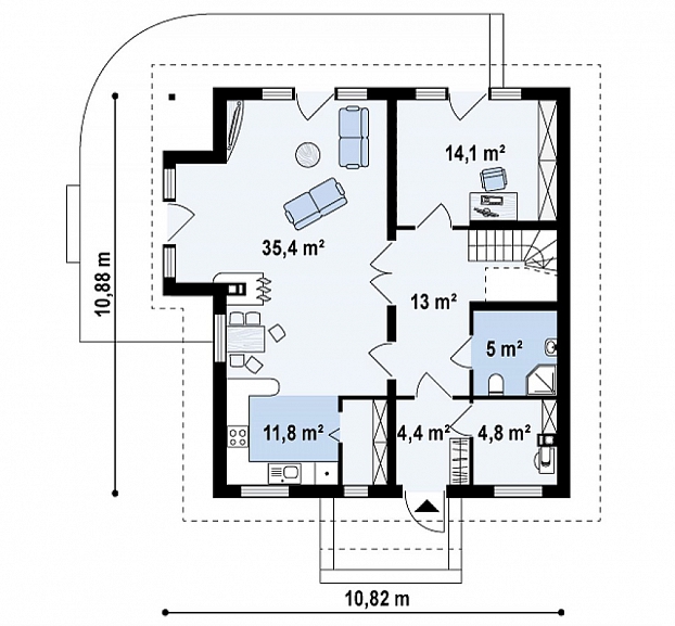
«135 м2»

Площадь дома: 135 м2
1 250 000 руб.

Прекрасный одноэтажный дом для молодой семьи 

Комплектация дома

Наружные стены из газобетонных блоков толщиной (375)мм D500. Кладка выполняется с применением специального клея для газобетона с армированием по ТУ «АЭРОК». В уровне верха каждого этажа устраивается армированный железобетонный пояс. Перемычки над оконными и дверными проёмами.

Внутренние перегородки из газобетонных блоков:

  • ненесущие толщиной 100 мм.
  • толщиной 200 мм

Устройство крыши , стропильная система из доскии 50х150мм, обрешетка 25х100мм, паро-гидроизоляция с покрытием металлической черепицей (Россия) с полимерным покрытием.

Рассчитывается индивидуально

  • Фундамент – монолитная железобетонная плита толщиной 300мм (с разводкой внутренних инженерных сетей в конструкции фундамента).
  • Внешняя отделка
  • Металлопластиковые окна (профиль рехау, двухкамерный стеклопакет, ламинация в цвет)
  • Дверь входная металлическая.
  • Другие отделочные работы.

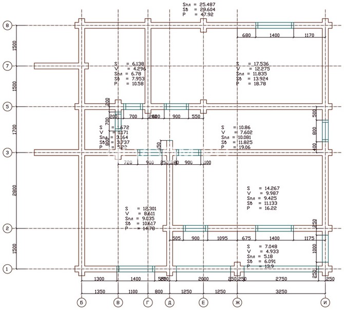
«142 м2»

Площадь дома: 142 м2
1 600 000 руб.

Прекрасный двухэтажный дом для молодой семьи 

Комплектация дома

Наружные стены из газобетонных блоков толщиной (375)мм D500. Кладка выполняется с применением специального клея для газобетона с армированием по ТУ «АЭРОК». В уровне верха каждого этажа устраивается армированный железобетонный пояс. Перемычки над оконными и дверными проёмами.

Внутренние перегородки из газобетонных блоков:

  • ненесущие толщиной 100 мм.
  • толщиной 200 мм

Устройство крыши , стропильная система из доскии 50х150мм, обрешетка 25х100мм, паро-гидроизоляция с покрытием металлической черепицей (Россия) с полимерным покрытием.

Рассчитывается индивидуально

  • Фундамент – монолитная железобетонная плита толщиной 300мм (с разводкой внутренних инженерных сетей в конструкции фундамента).
  • Внешняя отделка
  • Металлопластиковые окна (профиль рехау, двухкамерный стеклопакет, ламинация в цвет)
  • Дверь входная металлическая.
  • Другие отделочные работы.

«Дачная сказка»

Площадь дома: 144 м2
1 350 000 руб.

Просторный одноэтажный дом, спроектированный по финским стандартнам. Идеально подойдет для семьи, которая ценит минимализм и гармониию.

Прекрасное решение для небольшой семьи.

  • Площадь S = 144 м.кв
  • Площадь S = 140 м.кв без терасс.

Материал стен: Оцилиндрованное бревно D (диаметр) 220-260 мм.

Комплектация дома

  • Проектная документация (Архитектурный раздел с  3D-Визуализацией, конструктивная часть).
  • Стеновой комплект из оцилиндрованного бревна диаметром 220-260мм.
  • Комплектующие для сборки дома :Деревянные березовые нагеля диаметром 22мм, межвенцовый джутовый утеплитель ,компенсаторы усадки, скобы, метизы, гидроизоляция на фундамент).
  • Монтаж стенового комплекта на деревянные нагеля с укладкой межвенцового утеплителя.
  • Монтаж подкладной доски 50х200мм.
  • Межэтажное перекрытие из бруса 100х200мм
  • Монтаж(врезка)перекрытий.
  • Стропильная система : Стропильная доска 50х150мм, обрешетка 25х100мм, контробрешетка 50х50мм.Гидропароизоляционная пленка.
  • Монтаж стропильной системы на плавающие ,скользящие опоры, подвесы для равномерной усадки.
  • Антисептирование  стенового комплекта и стропильной системы.
  • Доставка домокомплекта

Рассчитывается индивидуально

  • Фундамент – монолитная железобетонная плита толщиной 300мм (с разводкой внутренних инженерных сетей в конструкции фундамента).
  • Внешняя отделка дома (включает ветровую доску, доску подшивки свесов с покраской и установкой (вагонкой), обсады оконных и дверных проемов, наличники наружные, устройство террассы из строганной доски естественной влажности доска (сосна). Частичная шлифовка, покраска дома и террас в 2 слоя (Tikkurila).
  • Кровля дома – металлочерепица (толщина 0,5мм), водосточная система с настилом и установкой.
  • Металлопластиковые окна (профиль рехау, двухкамерный стеклопакет, ламинация в цвет)
  • Дверь входная металлическая.

«150 м2»

Площадь дома: 150 м2
1 500 000 руб.

Прекрасный двухэтажный дом для молодой семьи 

Комплектация дома

Наружные стены из газобетонных блоков толщиной (375)мм D500. Кладка выполняется с применением специального клея для газобетона с армированием по ТУ «АЭРОК». В уровне верха каждого этажа устраивается армированный железобетонный пояс. Перемычки над оконными и дверными проёмами.

Внутренние перегородки из газобетонных блоков:

  • ненесущие толщиной 100 мм.
  • толщиной 200 мм

Устройство крыши , стропильная система из доскии 50х150мм, обрешетка 25х100мм, паро-гидроизоляция с покрытием металлической черепицей (Россия) с полимерным покрытием.

Рассчитывается индивидуально

  • Фундамент – монолитная железобетонная плита толщиной 300мм (с разводкой внутренних инженерных сетей в конструкции фундамента).
  • Внешняя отделка
  • Металлопластиковые окна (профиль рехау, двухкамерный стеклопакет, ламинация в цвет)
  • Дверь входная металлическая.
  • Другие отделочные работы.

«160 м2»

Площадь дома: 160 м2
1 700 000 руб.

Прекрасный двухэтажный дом для молодой семьи 

Комплектация дома

Наружные стены из газобетонных блоков толщиной (375)мм D500. Кладка выполняется с применением специального клея для газобетона с армированием по ТУ «АЭРОК». В уровне верха каждого этажа устраивается армированный железобетонный пояс. Перемычки над оконными и дверными проёмами.

Внутренние перегородки из газобетонных блоков:

  • ненесущие толщиной 100 мм.
  • толщиной 200 мм

Устройство крыши , стропильная система из доскии 50х150мм, обрешетка 25х100мм, паро-гидроизоляция с покрытием металлической черепицей (Россия) с полимерным покрытием.

Рассчитывается индивидуально

  • Фундамент – монолитная железобетонная плита толщиной 300мм (с разводкой внутренних инженерных сетей в конструкции фундамента).
  • Внешняя отделка
  • Металлопластиковые окна (профиль рехау, двухкамерный стеклопакет, ламинация в цвет)
  • Дверь входная металлическая.
  • Другие отделочные работы.

«165 м2»

Площадь дома: 165 м2
1 750 000 руб.

Прекрасный двухэтажный дом для молодой семьи 

Комплектация дома

Наружные стены из газобетонных блоков толщиной (375)мм D500. Кладка выполняется с применением специального клея для газобетона с армированием по ТУ «АЭРОК». В уровне верха каждого этажа устраивается армированный железобетонный пояс. Перемычки над оконными и дверными проёмами.

Внутренние перегородки из газобетонных блоков:

  • ненесущие толщиной 100 мм.
  • толщиной 200 мм

Устройство крыши , стропильная система из доскии 50х150мм, обрешетка 25х100мм, паро-гидроизоляция с покрытием металлической черепицей (Россия) с полимерным покрытием.

Рассчитывается индивидуально

  • Фундамент – монолитная железобетонная плита толщиной 300мм (с разводкой внутренних инженерных сетей в конструкции фундамента).
  • Внешняя отделка
  • Металлопластиковые окна (профиль рехау, двухкамерный стеклопакет, ламинация в цвет)
  • Дверь входная металлическая.
  • Другие отделочные работы.

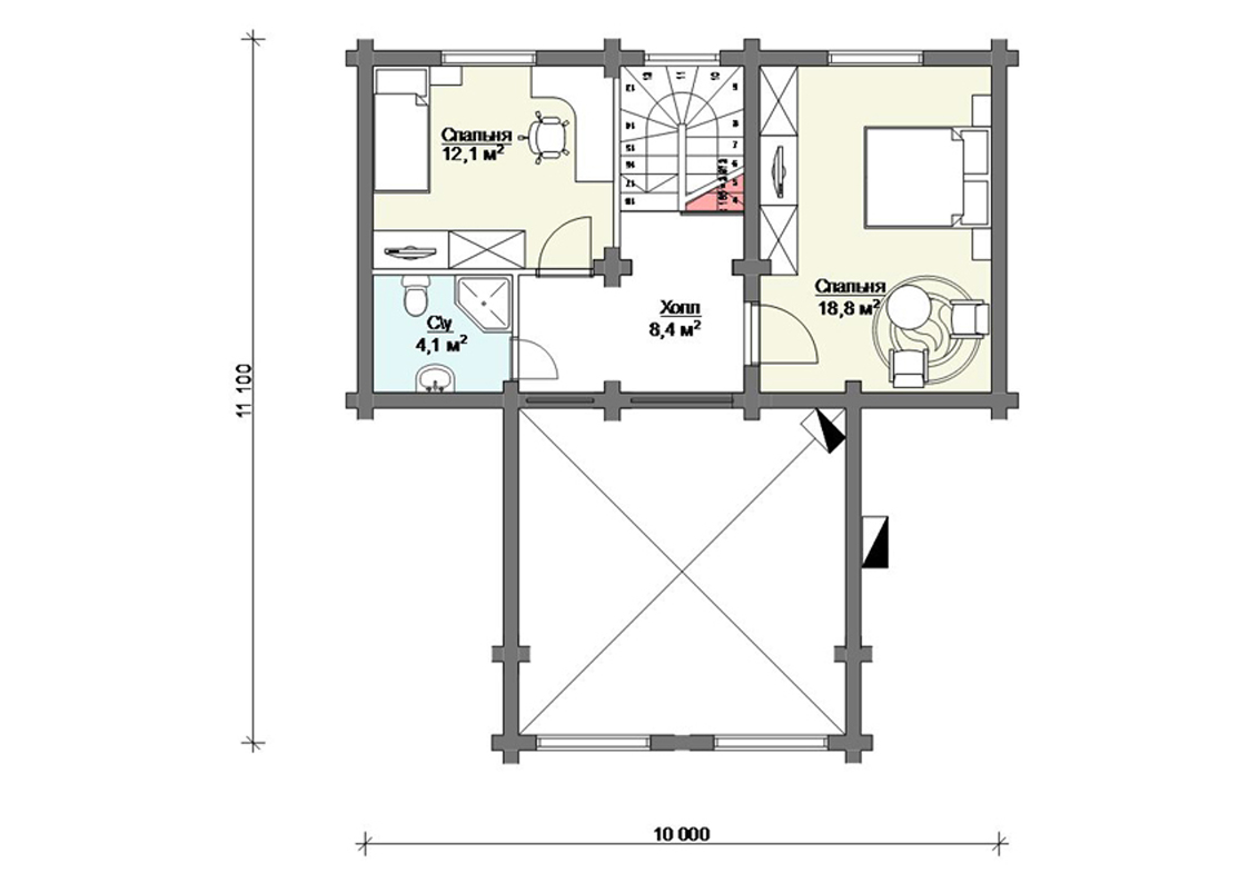
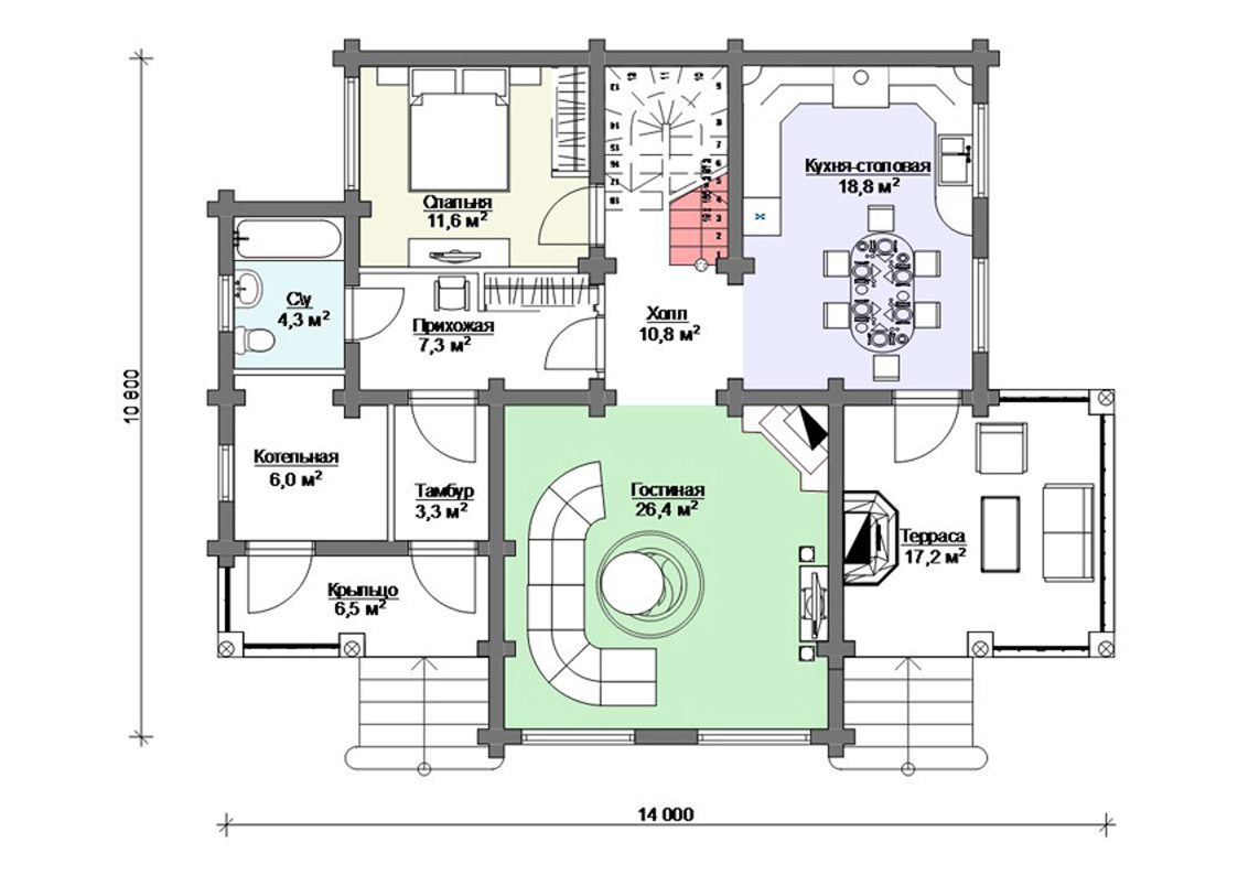
«Графский»

Площадь дома: 170 м2
1 480 000 руб.

Уютный дом, вмещающий в себя все необходимое для постоянного проживания. Завораживающее сочетание компактности и эстетичности.

  • Площадь S = 170 м.кв
  • Площадь S = 150 м.кв без терасс.

Материал стен: Оцилиндрованное бревно D (диаметр) 220-260 мм.

Комплектация дома

  • Проектная документация (Архитектурный раздел с  3D-Визуализацией, конструктивная часть).
  • Стеновой комплект из оцилиндрованного бревна диаметром 220-260мм.
  • Комплектующие для сборки дома :Деревянные березовые нагеля диаметром 22мм, межвенцовый джутовый утеплитель ,компенсаторы усадки, скобы, метизы, гидроизоляция на фундамент).
  • Монтаж стенового комплекта на деревянные нагеля с укладкой межвенцового утеплителя.
  • Монтаж подкладной доски 50х200мм.
  • Межэтажное перекрытие из бруса 100х200мм
  • Монтаж(врезка)перекрытий.
  • Стропильная система : Стропильная доска 50х150мм, обрешетка 25х100мм, контробрешетка 50х50мм.Гидропароизоляционная пленка.
  • Монтаж стропильной системы на плавающие ,скользящие опоры, подвесы для равномерной усадки.
  • Антисептирование  стенового комплекта и стропильной системы.
  • Доставка домокомплекта

Рассчитывается индивидуально

  • Фундамент – монолитная железобетонная плита толщиной 300мм (с разводкой внутренних инженерных сетей в конструкции фундамента).
  • Внешняя отделка дома (включает ветровую доску, доску подшивки свесов с покраской и установкой (вагонкой), обсады оконных и дверных проемов, наличники наружные, устройство террассы из строганной доски естественной влажности доска (сосна). Частичная шлифовка, покраска дома и террас в 2 слоя (Tikkurila).
  • Кровля дома – металлочерепица (толщина 0,5мм), водосточная система с настилом и установкой.
  • Металлопластиковые окна (профиль рехау, двухкамерный стеклопакет, ламинация в цвет)
  • Дверь входная металлическая.

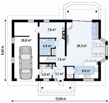
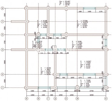
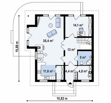
«170 м2»

Площадь дома: 170 м2
1 800 000 руб.

Прекрасный двухэтажный дом для молодой семьи 

Комплектация дома

Наружные стены из газобетонных блоков толщиной (375)мм D500. Кладка выполняется с применением специального клея для газобетона с армированием по ТУ «АЭРОК». В уровне верха каждого этажа устраивается армированный железобетонный пояс. Перемычки над оконными и дверными проёмами.

Внутренние перегородки из газобетонных блоков:

  • ненесущие толщиной 100 мм.
  • толщиной 200 мм

Устройство крыши , стропильная система из доскии 50х150мм, обрешетка 25х100мм, паро-гидроизоляция с покрытием металлической черепицей (Россия) с полимерным покрытием.

Рассчитывается индивидуально

  • Фундамент – монолитная железобетонная плита толщиной 300мм (с разводкой внутренних инженерных сетей в конструкции фундамента).
  • Внешняя отделка
  • Металлопластиковые окна (профиль рехау, двухкамерный стеклопакет, ламинация в цвет)
  • Дверь входная металлическая.
  • Другие отделочные работы.

«Скандинавия»

Площадь дома: 193 м2
1 280 000 руб.

Элегантный дом в скандинавском стиле. Имеет прекрасную терассу, второй свет, спальню и большой каминный зал в котором места хватит всем членам дружной семьи.

  • Площадь S = 193 м.кв
  • Площадь S = 125 м.кв без терасс.

Материал стен: Оцилиндрованное бревно D (диаметр) 220-260 мм.

Комплектация дома

  • Проектная документация (Архитектурный раздел с  3D-Визуализацией, конструктивная часть).
  • Стеновой комплект из оцилиндрованного бревна диаметром 220-260мм.
  • Комплектующие для сборки дома :Деревянные березовые нагеля диаметром 22мм, межвенцовый джутовый утеплитель ,компенсаторы усадки, скобы, метизы, гидроизоляция на фундамент).
  • Монтаж стенового комплекта на деревянные нагеля с укладкой межвенцового утеплителя.
  • Монтаж подкладной доски 50х200мм.
  • Межэтажное перекрытие из бруса 100х200мм
  • Монтаж(врезка)перекрытий.
  • Стропильная система : Стропильная доска 50х150мм, обрешетка 25х100мм, контробрешетка 50х50мм.Гидропароизоляционная пленка.
  • Монтаж стропильной системы на плавающие ,скользящие опоры, подвесы для равномерной усадки.
  • Антисептирование  стенового комплекта и стропильной системы.
  • Доставка домокомплекта

Рассчитывается индивидуально

  • Фундамент – монолитная железобетонная плита толщиной 300мм (с разводкой внутренних инженерных сетей в конструкции фундамента).
  • Внешняя отделка дома (включает ветровую доску, доску подшивки свесов с покраской и установкой (вагонкой), обсады оконных и дверных проемов, наличники наружные, устройство террассы из строганной доски естественной влажности доска (сосна). Частичная шлифовка, покраска дома и террас в 2 слоя (Tikkurila).
  • Кровля дома – металлочерепица (толщина 0,5мм), водосточная система с настилом и установкой.
  • Металлопластиковые окна (профиль рехау, двухкамерный стеклопакет, ламинация в цвет)
  • Дверь входная металлическая.

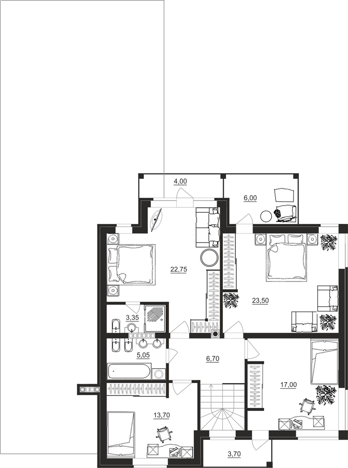
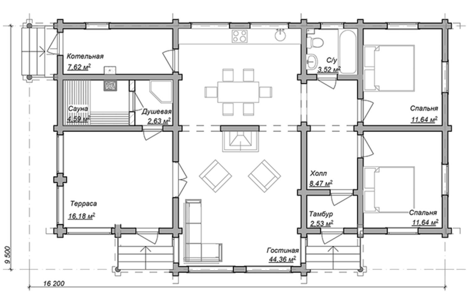
«Боярин»

Площадь дома: 200 м2
1 650 000 руб.

Прекрасный, вместительный дом с четырьмя спальнями, большим залом где располагается “второй свет” и просторными терассами . Отлично подойдет для большой семьи.

  • Площадь S = 200 м.кв
  • Площадь S = 170 м.кв без терасс.

Материал стен: Оцилиндрованное бревно D (диаметр) 220-260 мм.

Комплектация дома

  • Проектная документация (Архитектурный раздел с  3D-Визуализацией, конструктивная часть).
  • Стеновой комплект из оцилиндрованного бревна диаметром 220-260мм.
  • Комплектующие для сборки дома :Деревянные березовые нагеля диаметром 22мм, межвенцовый джутовый утеплитель ,компенсаторы усадки, скобы, метизы, гидроизоляция на фундамент).
  • Монтаж стенового комплекта на деревянные нагеля с укладкой межвенцового утеплителя.
  • Монтаж подкладной доски 50х200мм.
  • Межэтажное перекрытие из бруса 100х200мм
  • Монтаж(врезка)перекрытий.
  • Стропильная система : Стропильная доска 50х150мм, обрешетка 25х100мм, контробрешетка 50х50мм.Гидропароизоляционная пленка.
  • Монтаж стропильной системы на плавающие ,скользящие опоры, подвесы для равномерной усадки.
  • Антисептирование  стенового комплекта и стропильной системы.
  • Доставка домокомплекта

Рассчитывается индивидуально

  • Фундамент – монолитная железобетонная плита толщиной 300мм (с разводкой внутренних инженерных сетей в конструкции фундамента).
  • Внешняя отделка дома (включает ветровую доску, доску подшивки свесов с покраской и установкой (вагонкой), обсады оконных и дверных проемов, наличники наружные, устройство террассы из строганной доски естественной влажности доска (сосна). Частичная шлифовка, покраска дома и террас в 2 слоя (Tikkurila).
  • Кровля дома – металлочерепица (толщина 0,5мм), водосточная система с настилом и установкой.
  • Металлопластиковые окна (профиль рехау, двухкамерный стеклопакет, ламинация в цвет)
  • Дверь входная металлическая.

«200 м2»

Площадь дома: 200 м2
2 100 000 руб.

Прекрасный двухэтажный дом для молодой семьи 

Комплектация дома

Наружные стены из газобетонных блоков толщиной (375)мм D500. Кладка выполняется с применением специального клея для газобетона с армированием по ТУ «АЭРОК». В уровне верха каждого этажа устраивается армированный железобетонный пояс. Перемычки над оконными и дверными проёмами.

Внутренние перегородки из газобетонных блоков:

  • ненесущие толщиной 100 мм.
  • толщиной 200 мм

Устройство крыши , стропильная система из доскии 50х150мм, обрешетка 25х100мм, паро-гидроизоляция с покрытием металлической черепицей (Россия) с полимерным покрытием.

Рассчитывается индивидуально

  • Фундамент – монолитная железобетонная плита толщиной 300мм (с разводкой внутренних инженерных сетей в конструкции фундамента).
  • Внешняя отделка
  • Металлопластиковые окна (профиль рехау, двухкамерный стеклопакет, ламинация в цвет)
  • Дверь входная металлическая.
  • Другие отделочные работы.

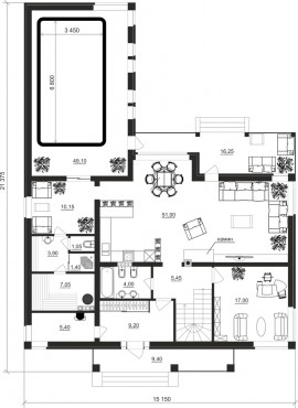
«Дворянский»

Площадь дома: 230 м2
1 800 000 руб.

Прекрасный дом для большой семьи. Очень продуманная планировка и эстетический внешний вид делает этот дом индивидуальным на 100%.

  • Площадь S = 230 м.кв
  • Площадь S = 200 м.кв без терасс.

Материал стен: Оцилиндрованное бревно D (диаметр) 220-260 мм.

Комплектация дома

  • Проектная документация (Архитектурный раздел с  3D-Визуализацией, конструктивная часть).
  • Стеновой комплект из оцилиндрованного бревна диаметром 220-260мм.
  • Комплектующие для сборки дома :Деревянные березовые нагеля диаметром 22мм, межвенцовый джутовый утеплитель ,компенсаторы усадки, скобы, метизы, гидроизоляция на фундамент).
  • Монтаж стенового комплекта на деревянные нагеля с укладкой межвенцового утеплителя.
  • Монтаж подкладной доски 50х200мм.
  • Межэтажное перекрытие из бруса 100х200мм
  • Монтаж(врезка)перекрытий.
  • Стропильная система : Стропильная доска 50х150мм, обрешетка 25х100мм, контробрешетка 50х50мм.Гидропароизоляционная пленка.
  • Монтаж стропильной системы на плавающие ,скользящие опоры, подвесы для равномерной усадки.
  • Антисептирование  стенового комплекта и стропильной системы.
  • Доставка домокомплекта

Рассчитывается индивидуально

  • Фундамент – монолитная железобетонная плита толщиной 300мм (с разводкой внутренних инженерных сетей в конструкции фундамента).
  • Внешняя отделка дома (включает ветровую доску, доску подшивки свесов с покраской и установкой (вагонкой), обсады оконных и дверных проемов, наличники наружные, устройство террассы из строганной доски естественной влажности доска (сосна). Частичная шлифовка, покраска дома и террас в 2 слоя (Tikkurila).
  • Кровля дома – металлочерепица (толщина 0,5мм), водосточная система с настилом и установкой.
  • Металлопластиковые окна (профиль рехау, двухкамерный стеклопакет, ламинация в цвет)
  • Дверь входная металлическая.

«Княжеский»

Площадь дома: 250 м2
1 990 000 руб.

Большой, раскошный дом с незаурядным балконом, вторым светом и приемной-гостиной. Вид этого дома подчеркивает статус его владельца.

  • Площадь S = 250 м.кв
  • Площадь S = 210 м.кв без терасс.

Материал стен: Оцилиндрованное бревно D (диаметр) 220-260 мм.

Комплектация дома

  • Проектная документация (Архитектурный раздел с  3D-Визуализацией, конструктивная часть).
  • Стеновой комплект из оцилиндрованного бревна диаметром 220-260мм.
  • Комплектующие для сборки дома :Деревянные березовые нагеля диаметром 22мм, межвенцовый джутовый утеплитель ,компенсаторы усадки, скобы, метизы, гидроизоляция на фундамент).
  • Монтаж стенового комплекта на деревянные нагеля с укладкой межвенцового утеплителя.
  • Монтаж подкладной доски 50х200мм.
  • Межэтажное перекрытие из бруса 100х200мм
  • Монтаж(врезка)перекрытий.
  • Стропильная система : Стропильная доска 50х150мм, обрешетка 25х100мм, контробрешетка 50х50мм.Гидропароизоляционная пленка.
  • Монтаж стропильной системы на плавающие ,скользящие опоры, подвесы для равномерной усадки.
  • Антисептирование  стенового комплекта и стропильной системы.
  • Доставка домокомплекта

Рассчитывается индивидуально

  • Фундамент – монолитная железобетонная плита толщиной 300мм (с разводкой внутренних инженерных сетей в конструкции фундамента).
  • Внешняя отделка дома (включает ветровую доску, доску подшивки свесов с покраской и установкой (вагонкой), обсады оконных и дверных проемов, наличники наружные, устройство террассы из строганной доски естественной влажности доска (сосна). Частичная шлифовка, покраска дома и террас в 2 слоя (Tikkurila).
  • Кровля дома – металлочерепица (толщина 0,5мм), водосточная система с настилом и установкой.
  • Металлопластиковые окна (профиль рехау, двухкамерный стеклопакет, ламинация в цвет)
  • Дверь входная металлическая.

«400 м2»

Площадь дома: 400 м2
4 600 000 руб.

Комплектация дома

Наружные стены из газобетонных блоков толщиной (375)мм D500. Кладка выполняется с применением специального клея для газобетона с армированием по ТУ «АЭРОК». В уровне верха каждого этажа устраивается армированный железобетонный пояс. Перемычки над оконными и дверными проёмами.

Внутренние перегородки из газобетонных блоков:

  • ненесущие толщиной 100 мм.
  • толщиной 200 мм

Устройство крыши , стропильная система из доскии 50х150мм, обрешетка 25х100мм, паро-гидроизоляция с покрытием металлической черепицей (Россия) с полимерным покрытием.

Рассчитывается индивидуально

  • Фундамент – монолитная железобетонная плита толщиной 300мм (с разводкой внутренних инженерных сетей в конструкции фундамента).
  • Внешняя отделка
  • Металлопластиковые окна (профиль рехау, двухкамерный стеклопакет, ламинация в цвет)
  • Дверь входная металлическая.
  • Другие отделочные работы.